
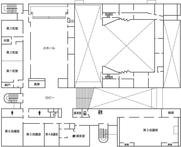
| 名称 | 面積 | 定員 | その他 | |
|---|---|---|---|---|
| 大ホール | 351㎡ | 552人 ※車椅子4席分を含む |
舞台 間口 15m |
|
| 美術展示室 | 121.5㎡ | |||
| 第1楽屋 | 23㎡ | 7人 | 化粧鏡5枚・姿見1枚 | |
| 第2楽屋 | 18㎡ | 6人 | 化粧鏡4枚・姿見1枚 | |
| 第1練習室 | 57㎡ | 28人 | ピアノ(当面使用禁止) | |
| 第2練習室 | 52㎡ | 26人 | ピアノ | |
| 第3練習室 | 91㎡ | 45人 | 鏡壁面1枚・ピアノ | |
| 第1会議室 | 94㎡ | 64人 | ||
| 第2会議室 | 32㎡ | 12人 | ||

|
名称 |
面積 | 定員 | その他 | |
|---|---|---|---|---|
| 第3会議室 | 229㎡ | 100人 | ||
| 第4会議室 | 44㎡ | 20人 | ||
| 第5会議室 | 62㎡ | 24人 | ||
| 第6会議室 | 85㎡ | 55人 | ||
| 小ホール | 290㎡ |
200人 (机・椅子を出す場合) (椅子のみの場合) |
ピアノ | |
| 第1和室 | 32畳 | 48人 | ||
| 第2和室 | 28畳 | 45人 | 水屋付 第1和室と通しで使用可 |
|
| 第3和室 | 18畳 | 27人 | ||

| 名称 | 面積 | 定員 | その他 | |
|---|---|---|---|---|
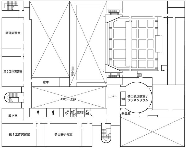
| 多目的活動室/プラネタリウム | 99㎡ |
87人 (椅子なしの場合) 40名 (椅子使用の場合) |
||
| 多目的研修室 | 106㎡ | 70人 | ||
| 第1工作実習室 | 101㎡ | 37人 |
工作台7 |
|
| 第2工作実習室 | 85㎡ | 37人 | 工作台7 | |
| 調理実習室 | 85㎡ | 37人 | 調理台7 | |
担当 弘前文化センター(指定管理者 アップルウェーブ株式会社)
電話 0172-33-6571